CONSTRUCTION DRAWINGS

2024 - 2026

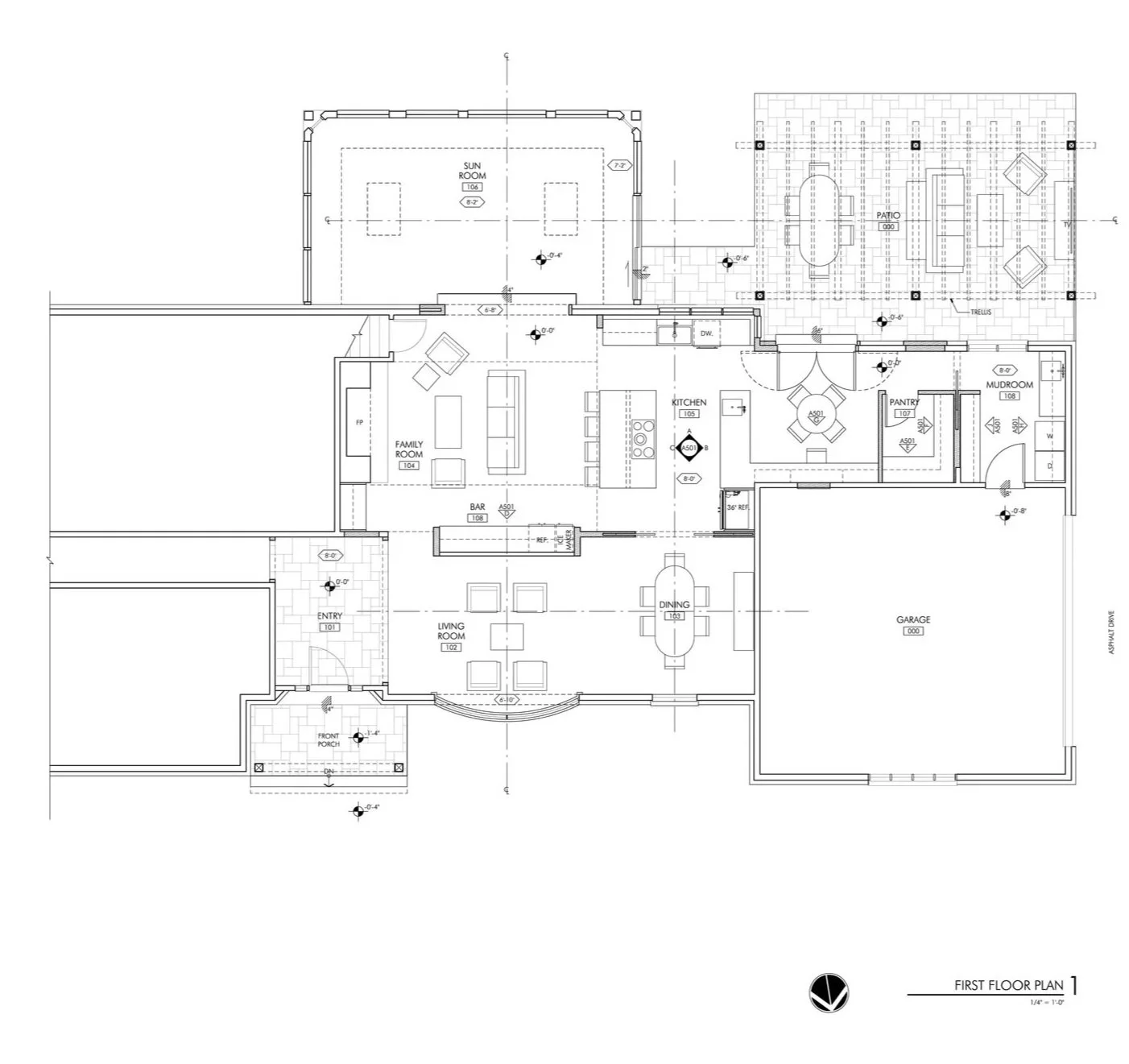
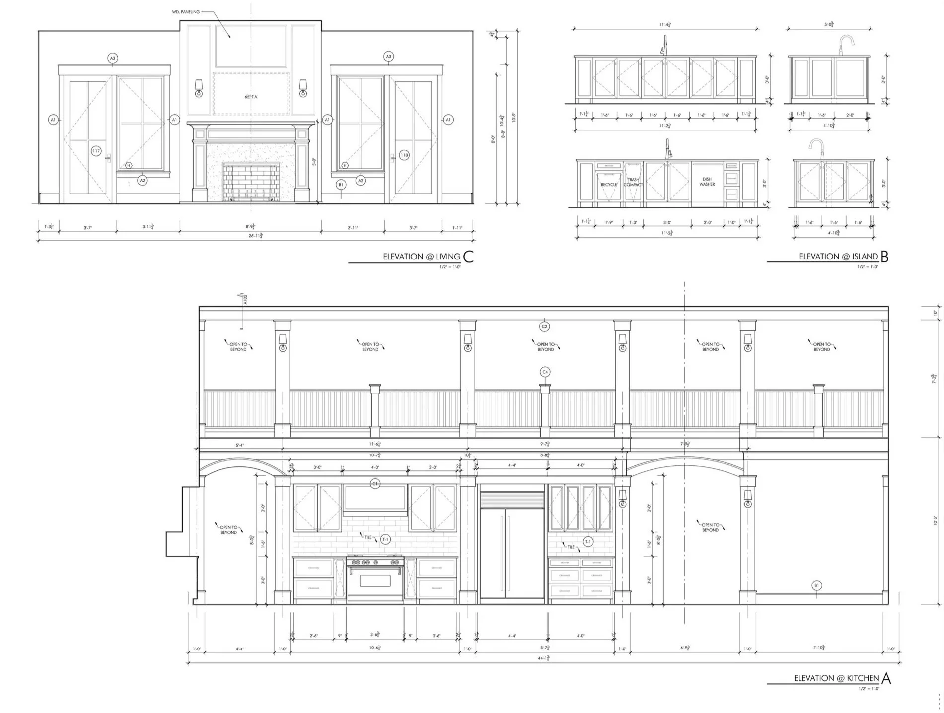
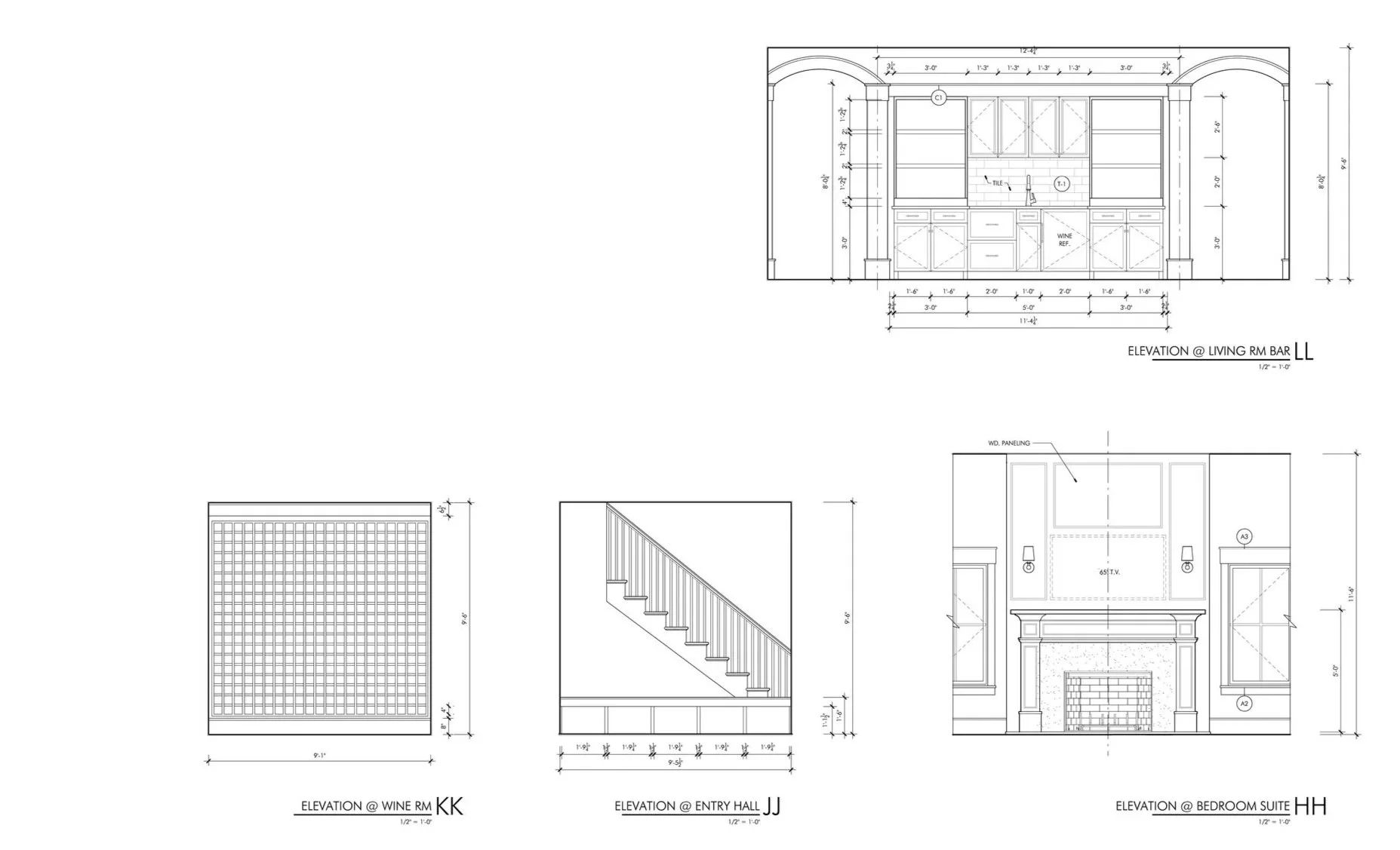
Construction drawings developed during my architectural internship at B.O.B. Architecture. Assisted in producing and documenting drawings under the supervision of senior staff, with revisions informed by redlines and formal review. Below are a few examples of the work I contributed to during my time with B.O.B. Architecture.

Measurements of as built conditions documented in AutoCAD.

Modified existing interior elevation drawings after reviewing red lines from senior staff.

Elevations done in AutoCAD.